MOAT FARM DEV PLOTS
MOAT FARM DEV PLOTS
×
Description
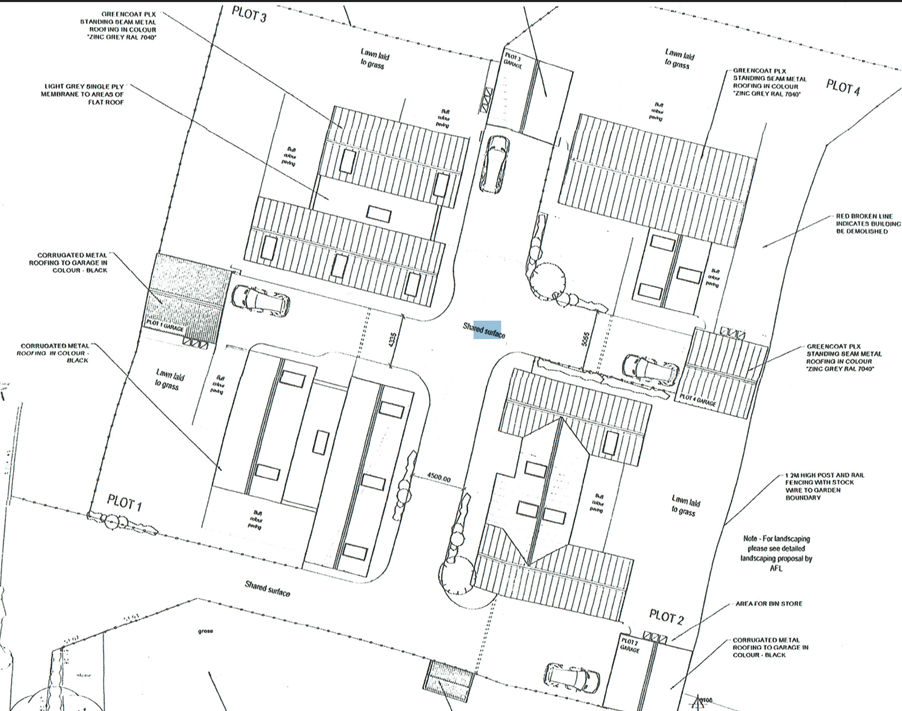
UNDER OFFER - 4 Building plots located in a spectacular location. Each with 1ac + Gardens. Guide Price £1.75m
UNDER OFFER - 4 Building plots located in a spectacular location. Each with 1ac + Gardens. Guide Price £1.75m
Bear Associates ©2026